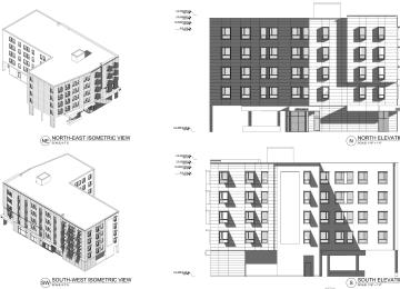
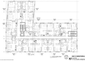
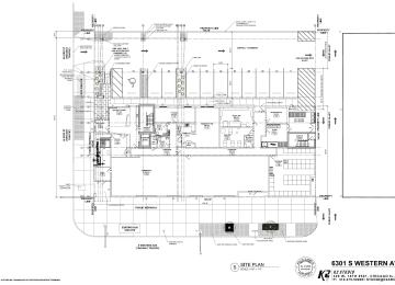
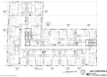
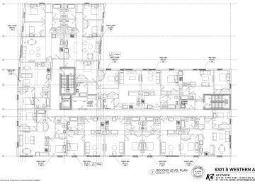
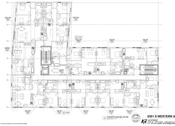
Image January 13, 2026 Demo permit issued to make way for affordable development at 6301 S. Western The five-story building will have 44 affordable units
Image October 20, 2025 Full building permit issued for mixed-use affordable development at 6301 S. Western All of the 44 residential units will be affordable
Image February 21, 2025 City Council approves mixed-use affordable development at 6301 S. Western All of the 44 residential units will be affordable