Local developer David Gassmann is proposing to construct a 12-story mixed-use development at 3611 N. Halsted in Lakeview. Located midblock between W. Addison St and W. Waveland Ave, the project site is currently a vacant lot after the one-story commercial structure was demolished back in 2024.
Designed by Studio Dwell Architects, the proposed development would stand 12 stories tall reaching 140 feet in height. The project will include 188 residential units, 77 parking spaces, 188 bike parking spaces, and a small cafe measuring approximately 900 square feet. To meet ARO requirements, 38 of the units will be set aside as affordable.
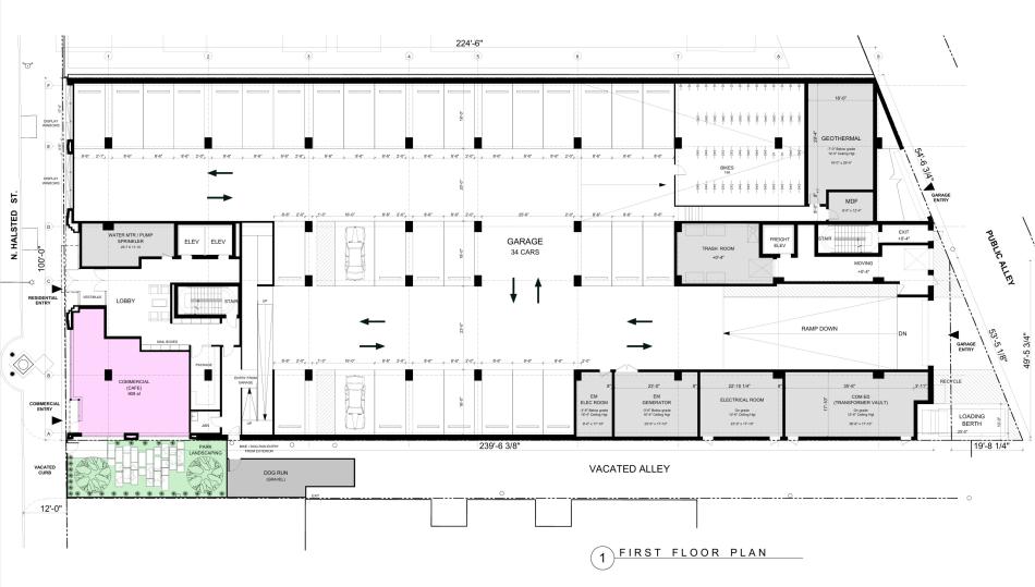
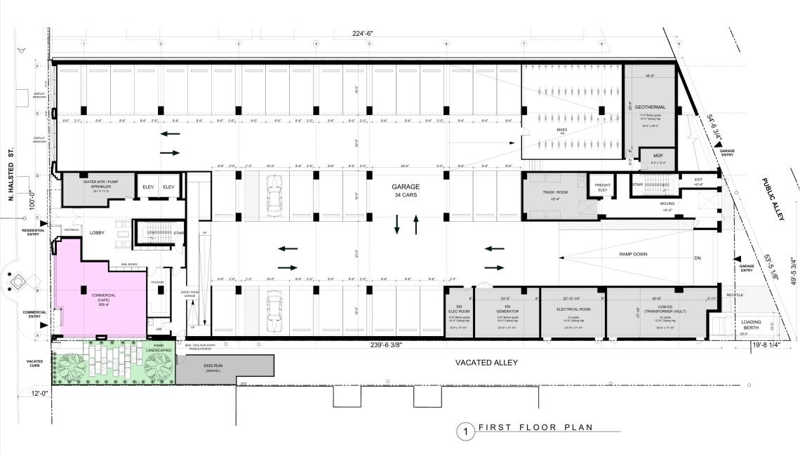
The building’s ground floor will have the cafe and residential lobby fronting N. Halsted St while the remainder of the floor would be occupied by 34 parking spaces, the building’s bike room, and mechanical space. The second floor will be dedicated to parking with 43 more spaces totaling 77 parking spaces in the two-story podium.
Above the podium, the footprint of the building sets back for the residential floors. The third floor is the first floor with apartments, which feature private terraces on top of the podium. All 188 units are located on floors 3 through 11, with 21 units per floor and 20 units on the 11th floor. The project’s unit mix will include 96 studios, 56 one-beds, and 36 two-beds. Select units will have private balconies.
On the 12th floor, residents will have access to indoor amenities including a fitness center as well as an outdoor amenity deck with seating, grilling stations, and landscaping.
To allow for the scope of the $65 million project, the developer is seeking to rezone the property from C1-2 to C1-5 with a Planned Development designation. Approvals will be needed from the local alderman, Chicago Plan Commission, Committee on Zoning, and City Council. The developer is targeting completion for 2027 dependent on the timeline for city approvals.





