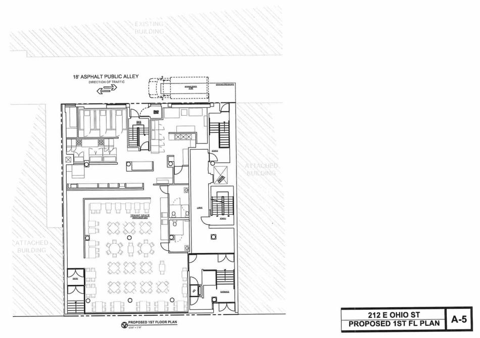
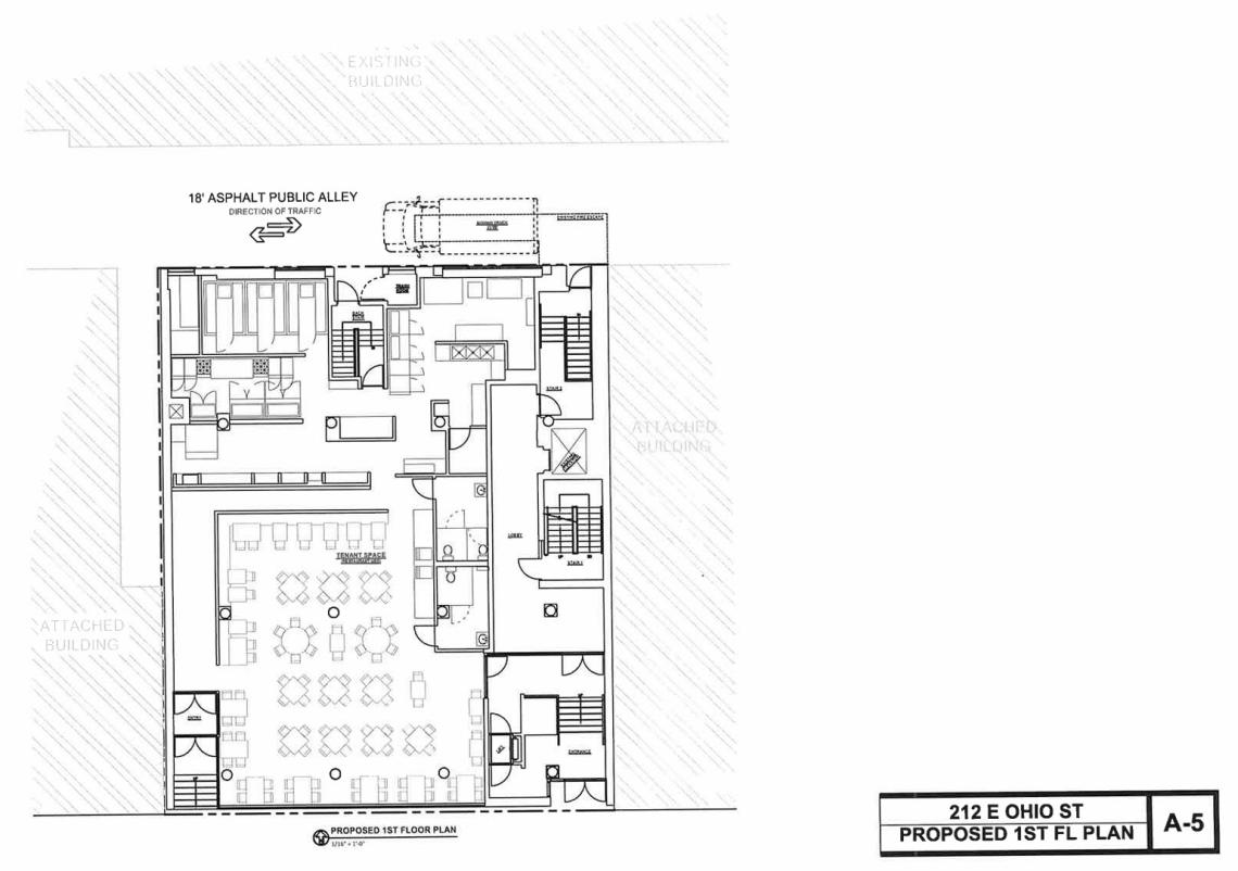
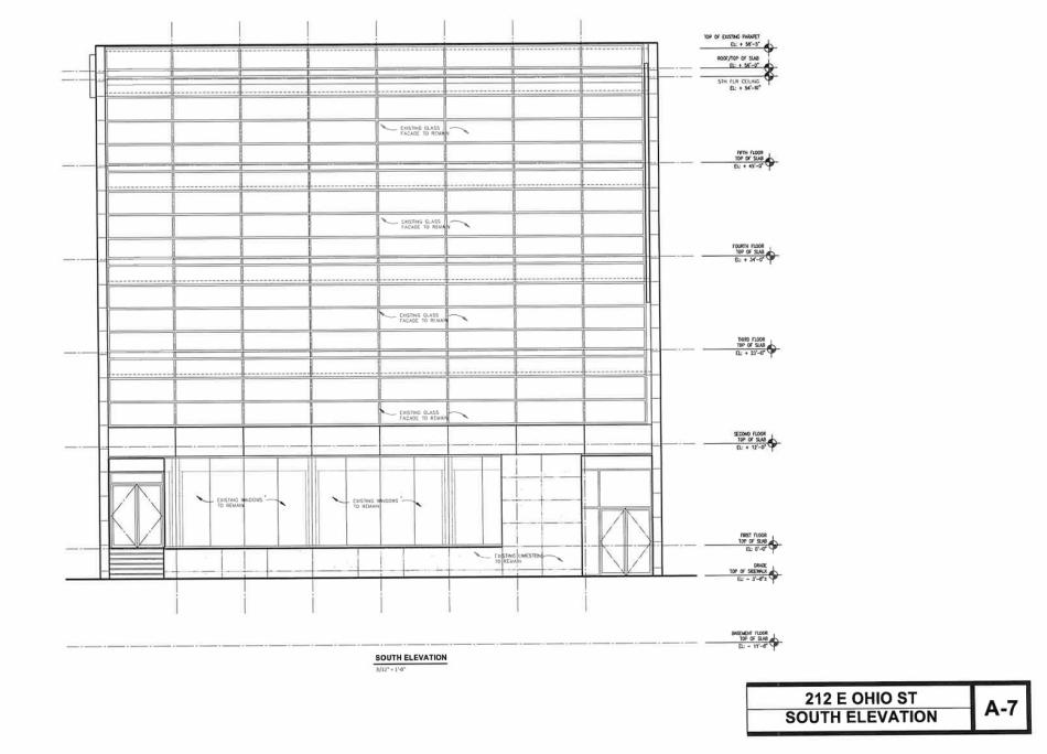
A zoning application has been filed for an office to residential conversion proposed at 212 E. Ohio. Planned by Cubed Real Estate, the project site is located midblock along E. Ohio St between N. Fairbanks Ct and N. St Clair St. The existing five-story building on the site is currently home to a restaurant on the ground floor and office space on the upper floors.
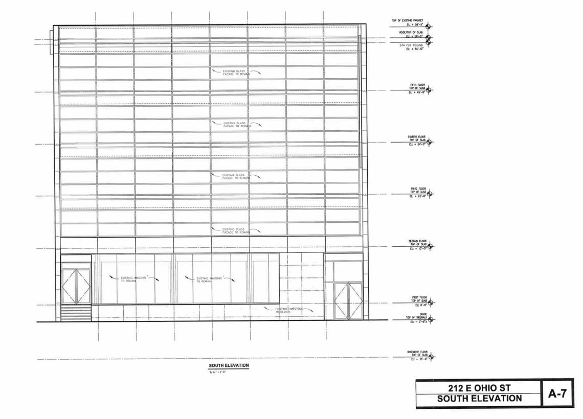
Designed by Gansari & Associates LLC, the proposed adaptive reuse of the existing building would retain ground floor retail space while converting the upper four floors of the building from office space into 28 residential units. No parking spaces will be provided in the project.
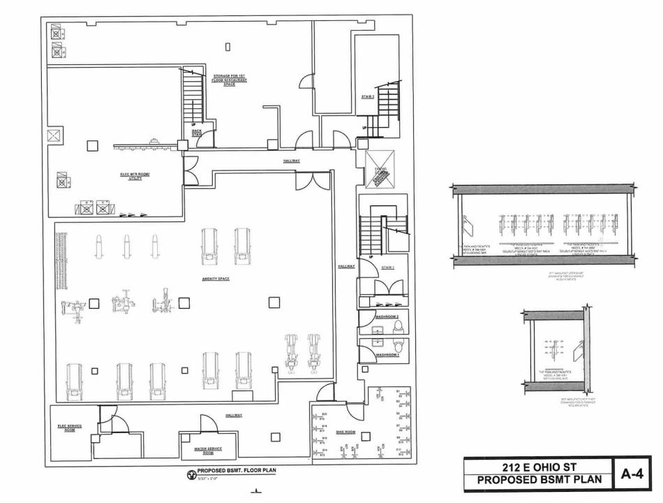
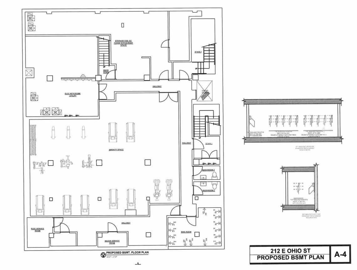
On the ground floor, the existing restaurant space will remain, with the office lobby converted into the new residential entry for the building. The basement of the building will have a fitness amenity space, a bike room with space for 28 bikes for residents, and mechanical spaces.
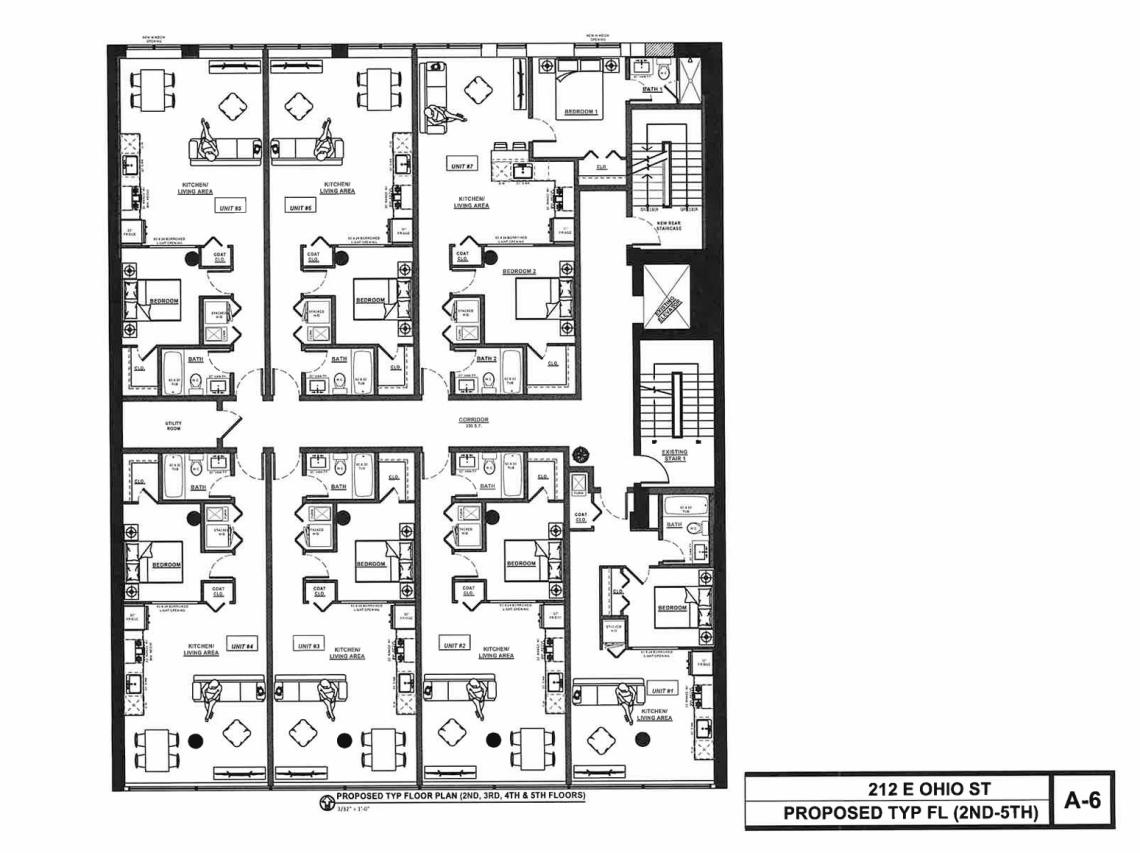
On the upper floors, the former office floors will be converted into a total of 28 residential units with seven units per floor that would be made up of 24 one-beds and four-beds.
To allow for the scope of the project, the developer is seeking a Type 1 rezoning of the site where the DX-12 zoning will remain, but the Type 1 amendment will include an administrative adjustment to eliminate parking, open space, and loading space requirements. Approvals will be needed from the Committee on Zoning and City Council.




