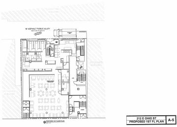
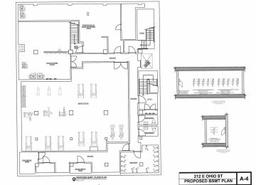
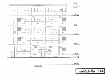
212 E. Ohio

Proposed Last updated 4/3/2026
Project Uses Apartments, Retail
# of Apartments 28
Floors (Above Ground) 5
Podium No
Construction Type Rehab/Adaptive Reuse, Type 3, 4 & 5

Companies

Developer Cubed Real Estate
Architect Gansari & Associates LLC
You have X free articles remaining this month.
Subscribe today!
Subscribe