A residential development is in the works at 2724 N. Lehmann Ct. Planned by Contemporary Concepts Inc, the project site is an infill property just off the intersection of W. Diversey Pkwy with N. Lehmann Ct. New York-based developer Validus Capital is currently converting the vacant former hotel just north of this property into 40 apartments.
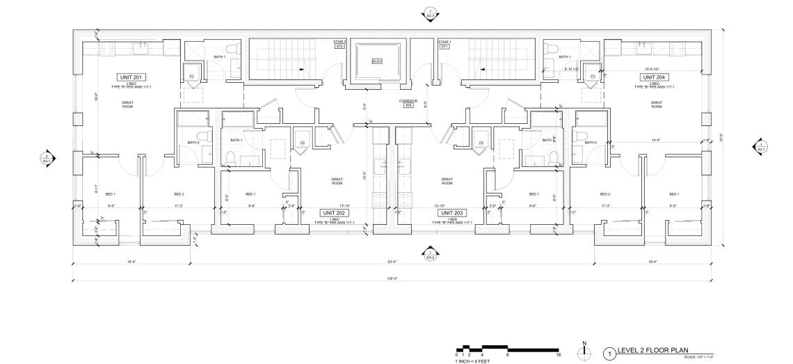
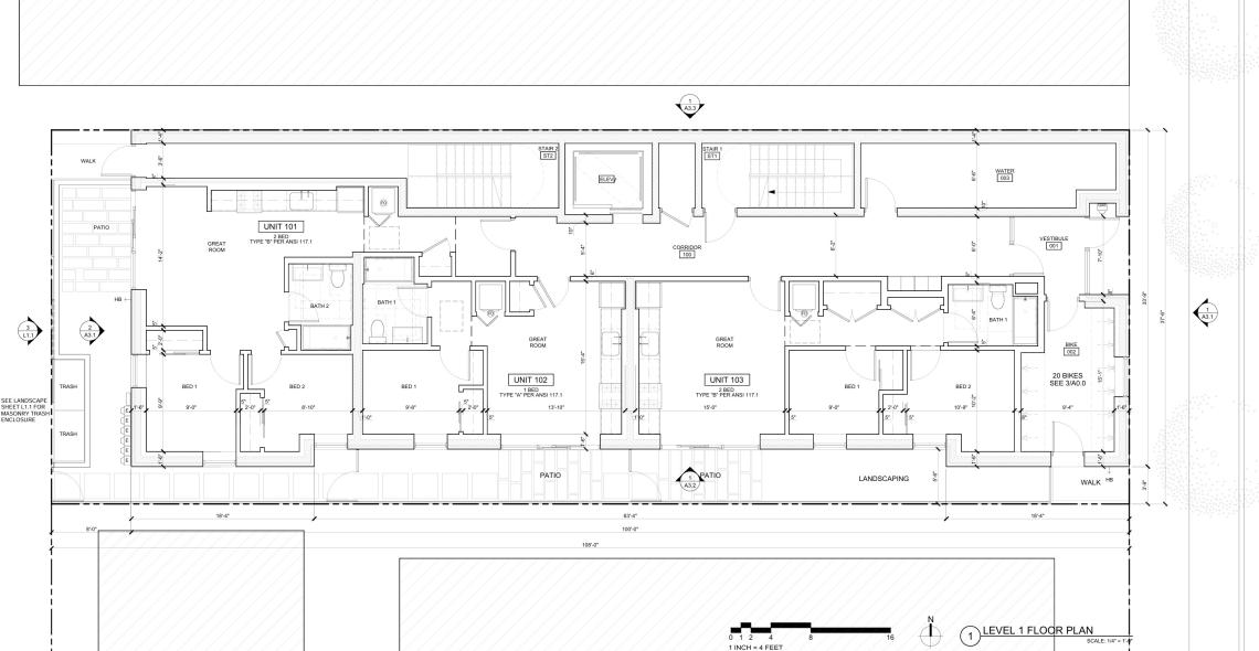
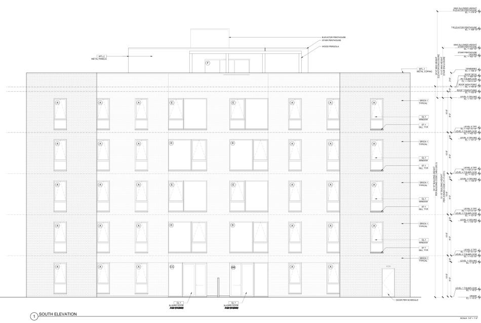
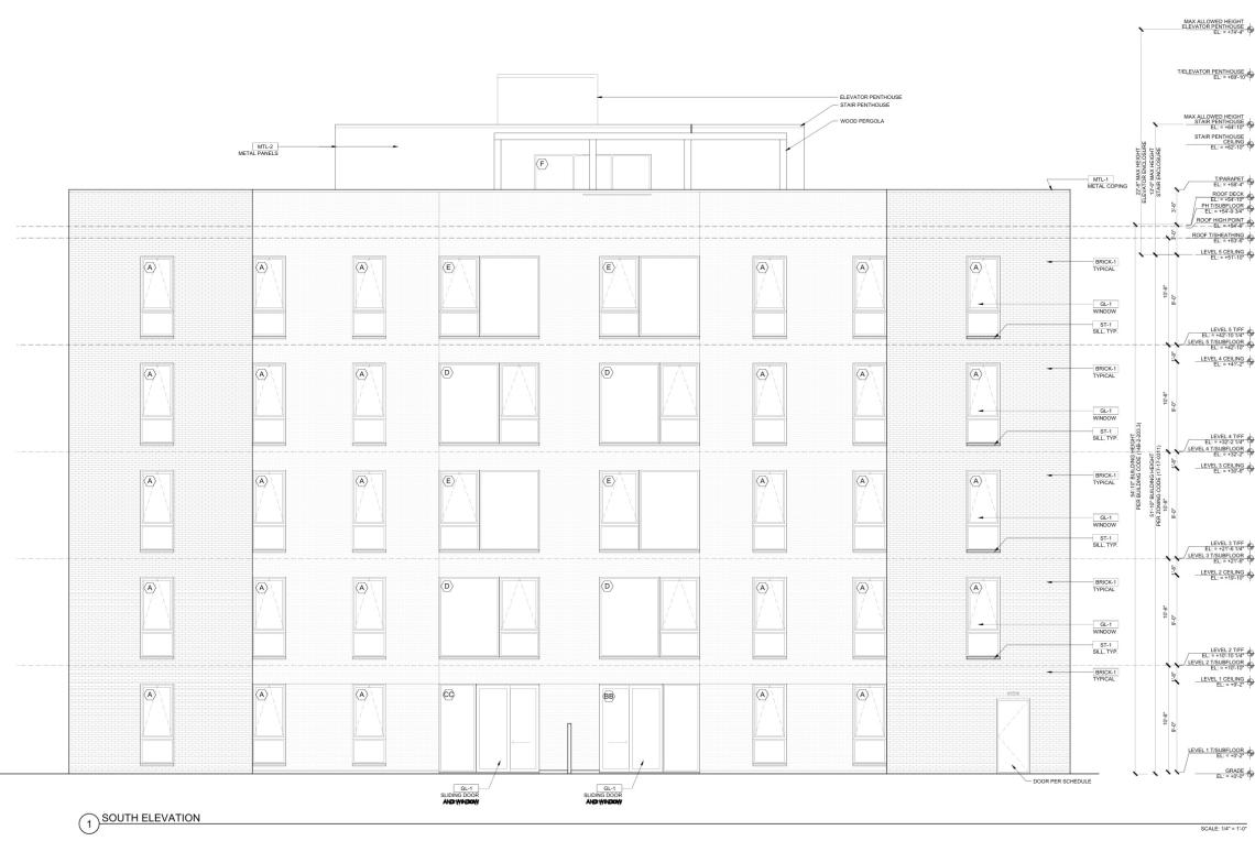
Designed by Studio Dwell Architects, the new construction will be a five-story brick building reaching 70 feet tall. The building will feature 19 new residential units with zero car parking spaces and 20 bike parking spaces.
The building will have three apartments on the ground floor with the bike room and residential entry facing the site’s street frontage. The upper four floors will each have units per floor. The building will have a total of 19 units that include 9 one-beds and 10 two-beds. Residents will have access to a shared rooftop deck.
The project is seeking variations from the Zoning Board of Appeals including a variation to reduce the number of off-street parking spaces for a transit served location from the required ten to zero; a variation to increase the building height from the maximum 50 feet to 51.83 feet; a special use to establish residential use below the second floor; and variations to reduce the front setback from the required 3.76 feet to zero, south side setback from 2.61 feet to zero, and rear setback from 30 feet to 8 feet.
The ZBA will review the proposed variations at its meeting later this month. If approved, the developer can move forward with permitting and construction.
Alderman Timmy Knudsen of the 43rd Ward is co-hosting a virtual community meeting for the development with the Park West Neighborhood Association on Monday, January 12th, at 6:00 p.m. A meeting link will be sent out in the 43rd Ward newsletter next week for those who want to attend.




