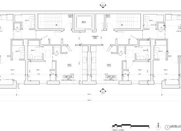
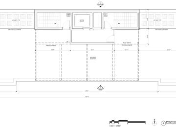
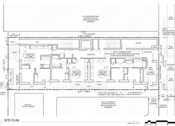
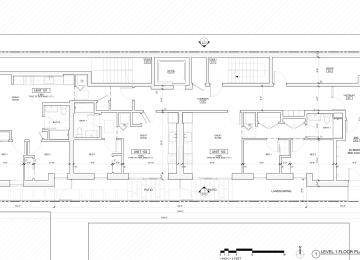
Image April 2, 2026 Full building permit issued for project at 2724 N. Lehmann Ct The five-story building will have 19 units and no parking spaces
Image January 22, 2026 ZBA approves development at 2724 N. Lehmann Ct The five-story building will have 19 units and no parking spaces
Image January 5, 2026 Residential development planned at 2724 N. Lehmann Ct The five-story building would have 19 units and no parking spaces