A zoning application has been filed for a proposed residential development at 754 W. Belden. Planned by Over the Rainbow Association, the project site is located at the intersection of W. Belden Ave and N. Halsted St. The existing two-story residential building on the property would be demolished to make way for the new development.
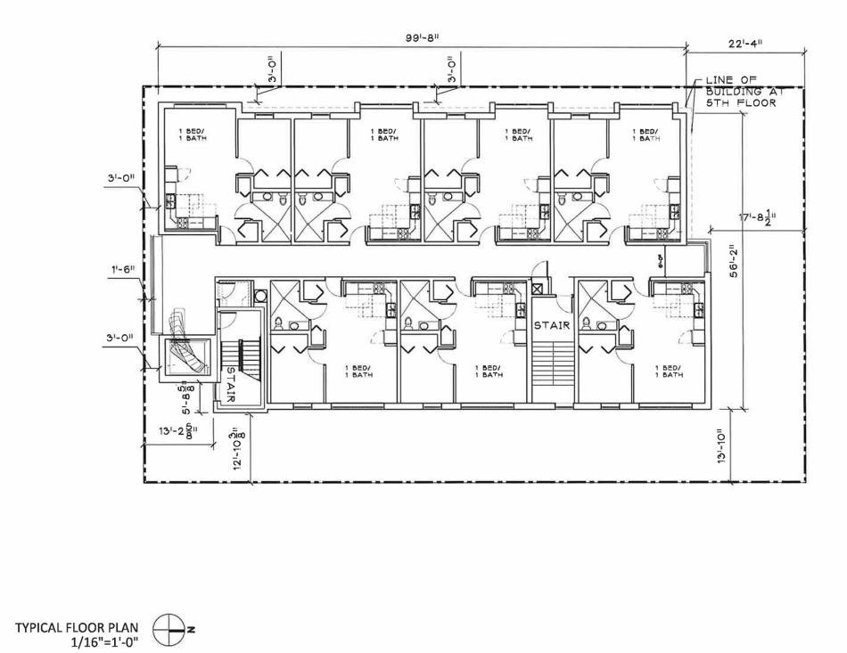
Designed by Weese Langley Weese, the proposed development would take shape as a five-story, all-residential building reaching approximately 58 feet in height. The building as planned would have 30 residential units, but no retail space, no car parking, and no bike parking.
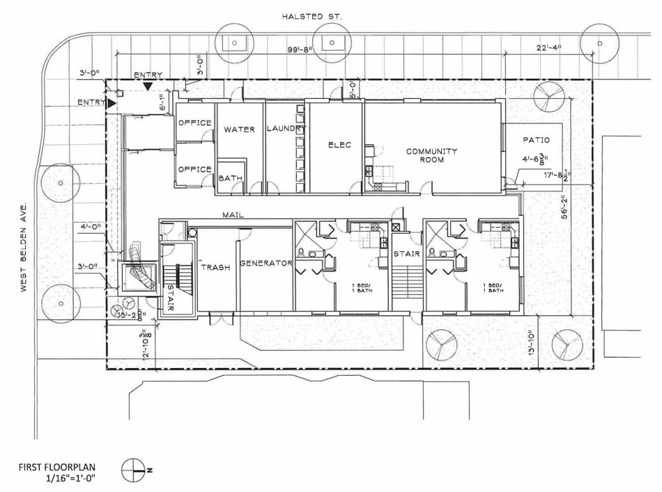
On the ground floor, the building’s residential entry is located at the corner of the building, with offices, a laundry room, and a community room facing N. Halsted St. Two residential units will be located at the back of the building. The upper floors of the building would have seven units per floor, and all of the apartments would be one-bedroom layouts.
To allow for the scope of the project, the developer is seeking to rezone the site from RT-4 to B2-3. Approvals will be needed from the alderman, the Committee on Zoning, and the full City Council.



