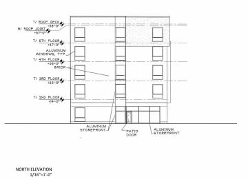
754 W. Belden

Proposed Last updated 4/12/2026
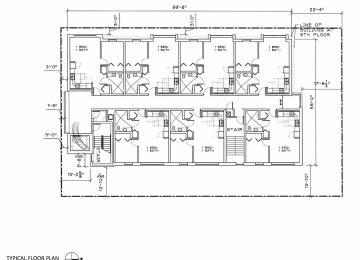
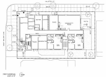
Project Uses Apartments
# of Apartments 30
Floors (Above Ground) 5
Podium No
Height (ft) 58
Construction Type Type 3, 4 & 5

Companies

Developer Over the Rainbow Association
Architect Weese Langley Weese Architects
You have X free articles remaining this month.
Subscribe today!
Subscribe