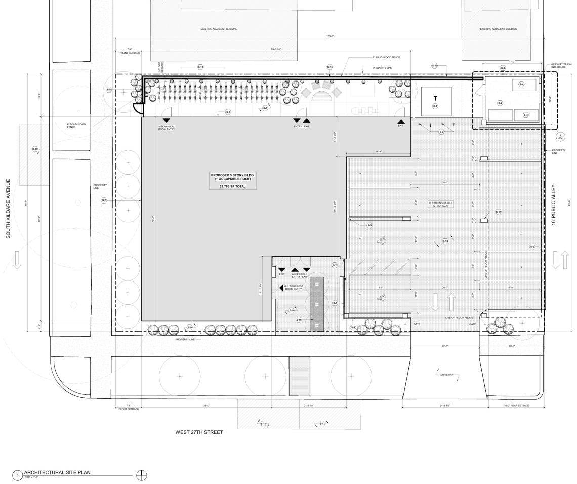
The Zoning Board of Appeals has approved a special use application to allow for Erie House La Villita Floreciendo Center at 2653 S. Kildare. Planned by Erie Neighborhood House, the community center development will replace a vacant lot at the corner of S. Kildare Ave and W. 27th St.
Designed by Canopy / architecture + design, the five-story community center, dubbed Erie House La Villita Floreciendo Center, will be a new intergenerational, youth-focused space serving families in the Little Village neighborhood.
The 22,000-square-foot, five-story building will include a full-size gymnasium, flexible classrooms, an arts studio, private counseling and therapy offices, teen and tech lounges, a community kitchen, outdoor green spaces, a rooftop playground, and children’s gardens. Each space has been shaped by community input to ensure safety, accessibility, and a reflection of neighborhood identity.
The Erie House La Villita Floreciendo Center will be a place where families can access vital services, develop skills, and forge connections rooted in culture and community strength. It aims to foster resilience, promote mental health, provide educational opportunities, and support economic mobility, all within an environment that celebrates Little Village’s rich identity.
To allow for the project, the organization sought approval from the ZBA for a special use to establish a community center on the project site. With that approval secured, the organization can move forward with permitting and construction. A timeline for construction has not been announced as the organization is currently in the process of raising funds for the project.



