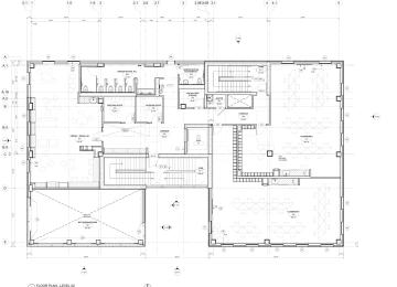
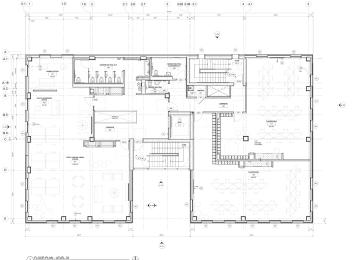
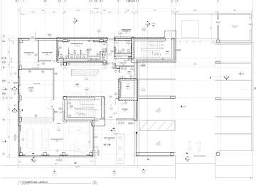
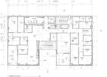
Erie House La Villita Floreciendo Center

Approved Last updated 4/3/2026
Project Uses Cultural
Floors (Above Ground) 5
Podium No
Height (ft) 70
Construction Type Type 3, 4 & 5

Companies

Developer Erie Neighborhood House
Architect Canopy Architecture + Design
You have X free articles remaining this month.
Subscribe today!
Subscribe