The Zoning Board of Appeals will review a set of variances later this month for a slightly adjusted development plan at 566 W. Van Buren. Planned by Riverside Investment & Development, the project site is located at the corner of W. Van Buren St and S. Jefferson St. Back in 2022, the developer got permits to demolish the existing buildings, so the site is now vacant.
Designed by Antunovich Associates, the updated scheme for the site is planned to stand 12 stories tall, down two floors from the 2022 version. In the updated plan, the project will have the same 199 residential units but eliminates the retail space and reduces the parking count from 76 down to 42. These shifts resulted in the removal of the dedicated second floor parking level and shifts in the unit plans have resulted in the elimination of a residential floor.
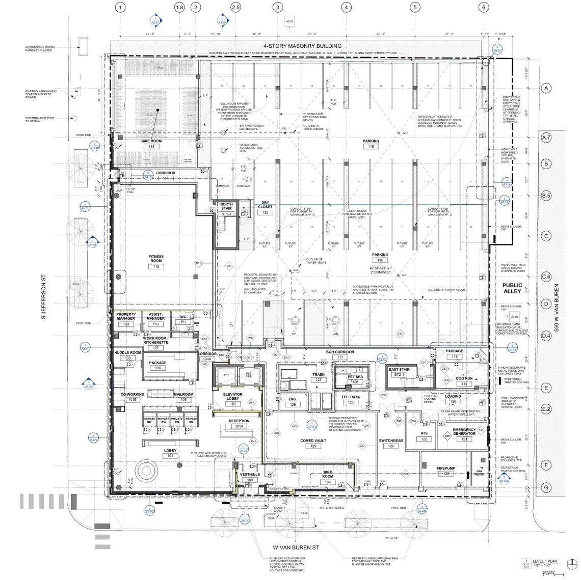
On the ground floor, the residential entry will face W. Van Buren with residential amenities along S. Jefferson St that includes a coworking space, mail room, fitness center, and bike room. 42 parking spaces will be located within the ground floor accessed from the alley.
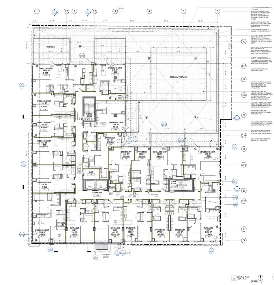
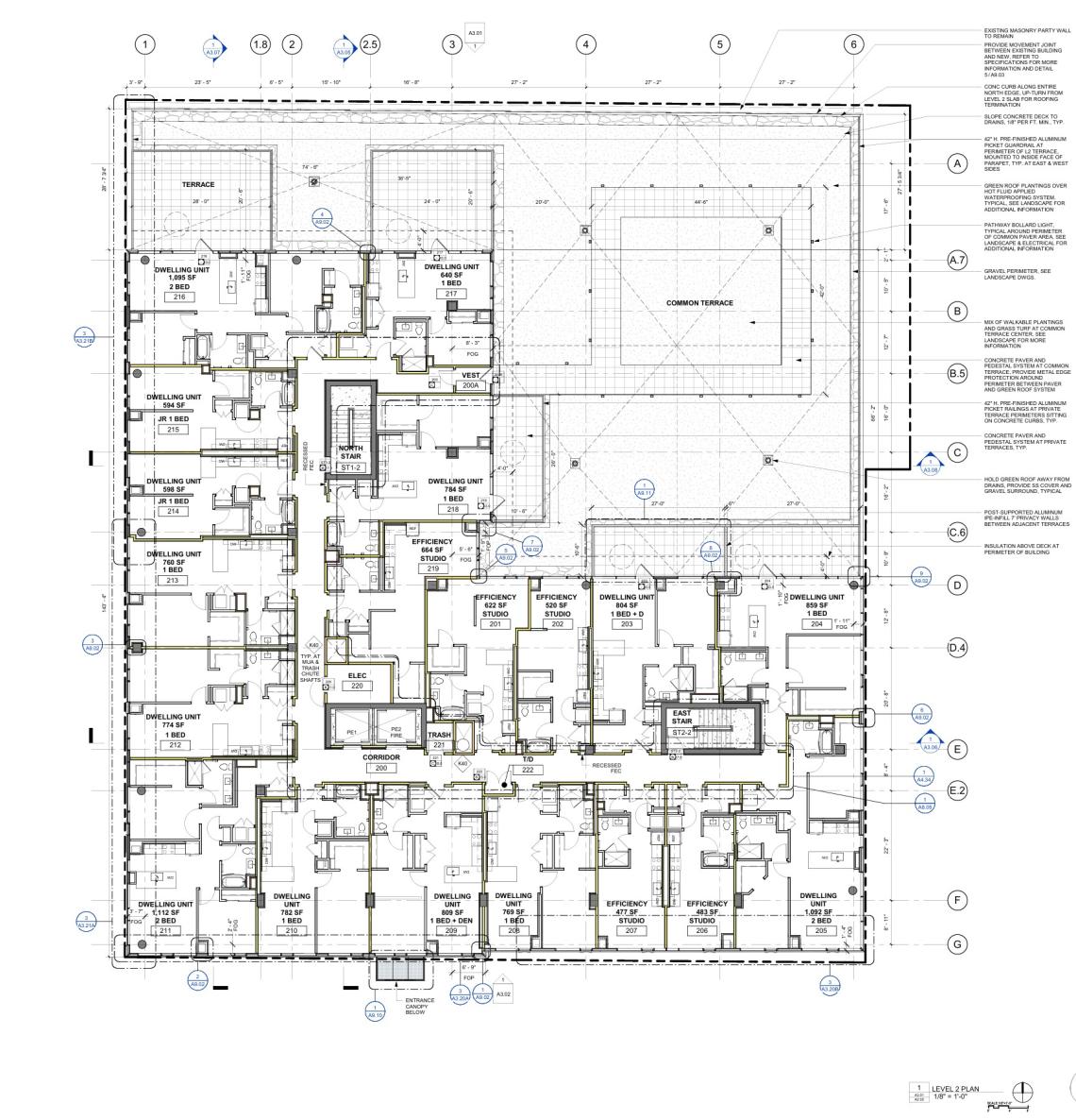
Above the ground floor, typical residential floors will have 19 units per floor. The revised design eliminates all unit balconies but select units on the second floor have private terraces on the second-floor roof deck. In total, the project’s unit mix will include 52 studios, 113 one-beds, 34 two-beds.
On the top floor, the building will have nine residential units and amenity spaces for the residents. Interior amenities will include a club room and private club room while the outdoor amenity deck will have a grilling area, lounge and a pool.
To allow for the project, the developer is seeking a variation to allow alternative compliance with the open space requirements for the project and a special use application to allow for the ground floor of the building to be used for tenant amenity spaces rather than retail or commercial spaces.
If the ZBA approves the variations, the project can proceed with permitting and construction. Permits have been filed for the project and Clark Construction is listed as the general contractor.





