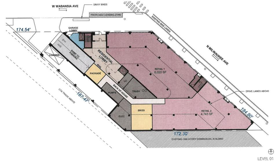
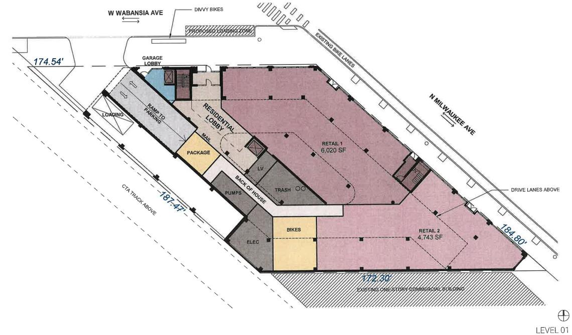
A zoning application has been filed for a proposed mixed-use development at 1704 N. Milwaukee. Planned by Senco Properties, the project site is located at the intersection of N. Milwaukee Ave and W. Wabansia Ave with the CTA L tracks running along the back side of the property. An existing strip mall and surface parking lot along the street on the property would be demolished to make way for the development.
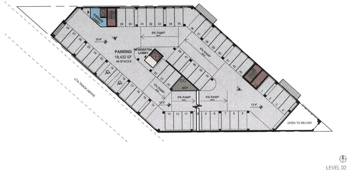
Designed by FitzGerald, the seven-story mixed-use building would include 10,763 square feet of retail space, 60 residential units, and a total of 67 parking spaces, down from the 105 parking spaces originally proposed back in September. 12 of the spaces will be set aside for residents and 55 are planned to be made available as public parking. 12 of the apartments are planned to be set aside to meet ARO requirements.
The building’s ground floor will have two retail spaces facing N. Milwaukee Ave and wrapping around the corner onto W. Wabansia Ave. The residential entrance will face W. Wabansia Ave with the parking and loading access for the building via a curb cut on W. Wabansia Ave to the west of the residential lobby. A bike room and mechanical spaces will be located at the back of the building.
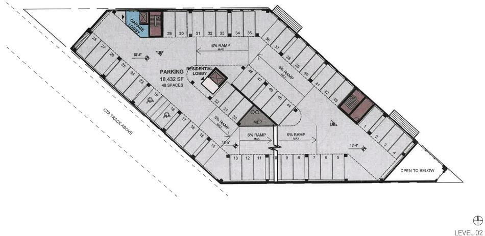
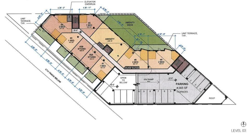
Above the ground floor, the building’s podium will feature a full floor of parking on the second level with a dedicated elevator and garage lobby for public access. The third floor will have parking at the south end with eight residential units in the northern leg of the floor. A residential amenity space will be included that provides access to an outdoor amenity deck that faces north overlooking the intersection of N. Milwaukee Ave and W. Wabansia Ave.
Topping out at 78 feet tall, the residential tower component will have four full residential floors with 13 apartments per floor. With a total unit count of 60 apartments, the project’s unit mix will include 2 studios, 23 one-beds, 27 two-beds, and 8 three-beds.
To allow for the scope of the project, the developer is seeking to rezone the site from C1-2 to C1-5. Approvals will be needed from the Committee on Zoning and City Council. If approved, the development is expected to take 12-14 months to build.





