1704 N. Milwaukee

Proposed Last updated 12/3/2025
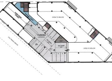
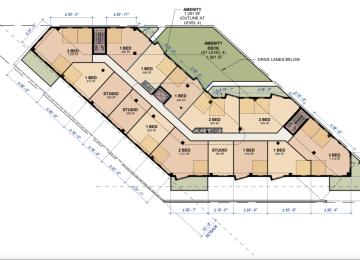
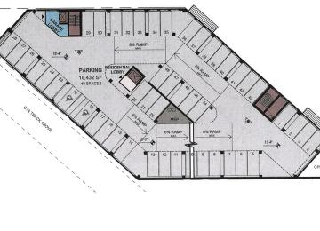
Project Uses Apartments, Retail, Parking
# of Apartments 58
Floors (Above Ground) 7
Podium No
Construction Type Type 3, 4 & 5

Companies

Developer Senco Properties
You have X free articles remaining this month.
Subscribe today!
Subscribe