A zoning application has been filed for a proposed residential development at 3233 N. Sheffield in Lakeview. Planned by developers North Park Ventures & SNS Realty Group, the project site is located midblock along N. Sheffield Ave between W. Belmont Ave and W. School St with the CTA L tracks behind the site. The property has been home to the Torstenson’s Glass facility which is now vacant.
Designed by 2rz Architecture, the five-story all-residential building is set to deliver 99 residential units, with an expected unit mix of 4 studios, 46 one-beds, and 49 two-beds. Residents will have access to 25 car parking spaces and 87 bike parking spaces.
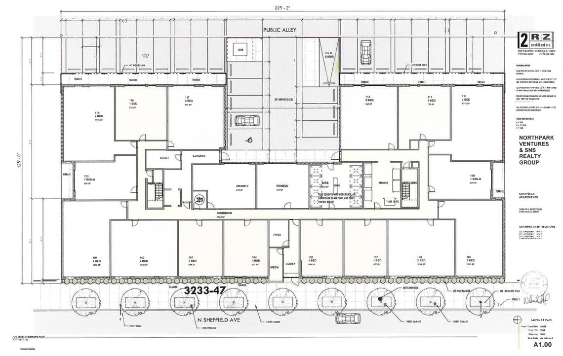
On the ground floor, the residential lobby will be located in the middle of the building’s street frontage with eight residential units making up the rest of the street frontage and eight more units making up the majority of the remainder of the ground floor. A club room, fitness room, and bike room will be included on the ground floor as resident amenities. At the back of the site, 25 car parking spaces will be located along the alley.
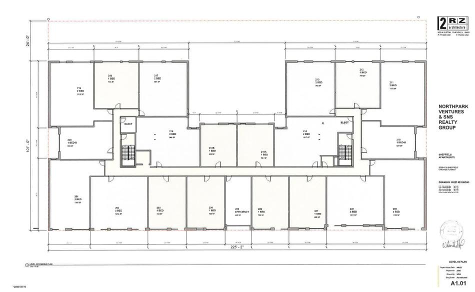
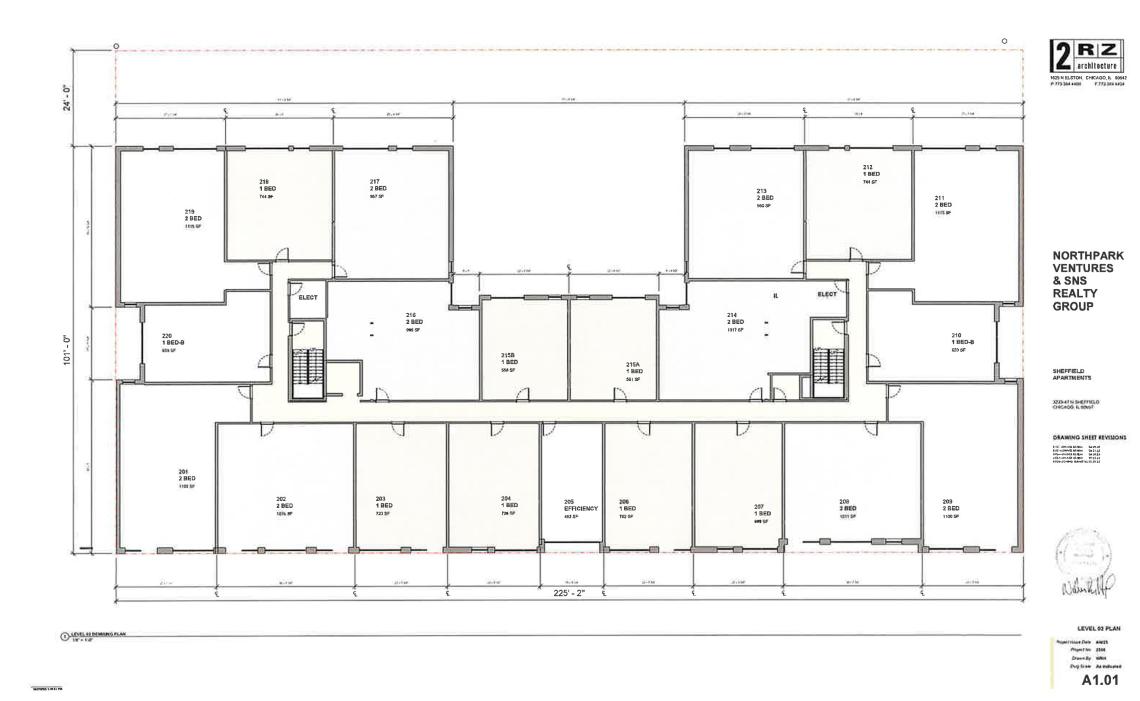
Upper floors will be all-residential and typical floor plans show 21 units per floor with the top floor having 20 units. To meet the Affordable Requirement Ordinance (ARO), the project will include 15 affordable housing units out of the 99 apartments.
To allow for the scope of the development, the developers are seeking to rezone the site from B3-2 to B3-5. Approvals will be needed from the Committee on Zoning and City Council.




