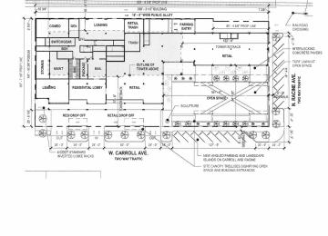
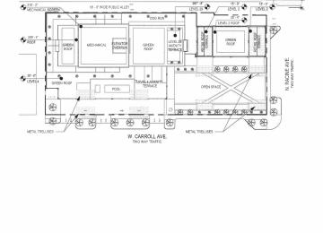
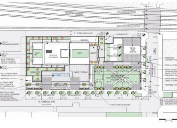
Image October 21, 2025 Mixed-use development at 1200 W. Carroll presented to community The 29-story tower will replace plans for an office tower by Sterling Bay
Image May 20, 2025 Mixed-use development proposed at 1200 W. Carroll The 29-story tower will replace plans for an office tower by Sterling Bay
Image May 17, 2021 Sterling Bay making room for 14-story office development at 1200 W. Carroll The West Loop project is expected to welcome tenants in 2023