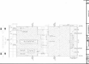
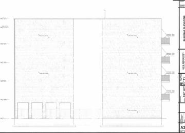
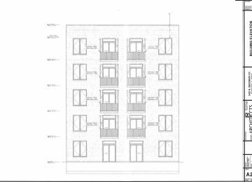
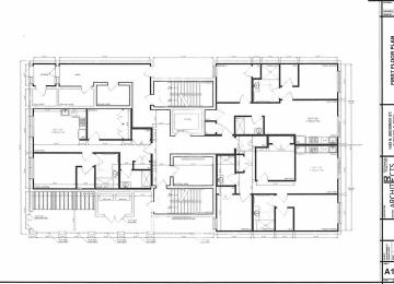
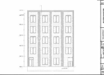
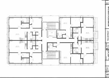
Image November 12, 2025 City Council approves development at 1453 N. Sedgwick The five-story building will have 27 units and no parking
Image October 14, 2025 Revised development proposed at 1453 N. Sedgwick The five-story building would have 27 units and no parking
Image May 11, 2023 City Council approves 1453 N. Sedgwick The TOD development will have zero parking spaces