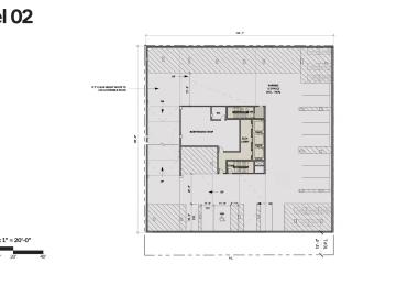
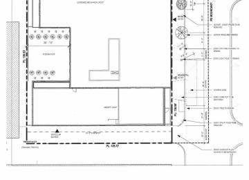
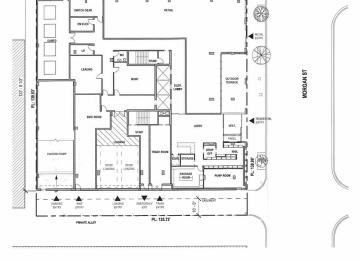
Image December 15, 2025 City Council approves mixed-use development at 214 N. Morgan The 18-story building will have 268 units and retail
Image November 24, 2025 Plan Commission approves mixed-use development at 214 N. Morgan The 18-story building will have 268 units and retail
Image October 27, 2025 Developers present plan for 214 N. Morgan to community The revised scheme would stand 18 stories with 268 units