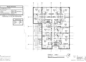
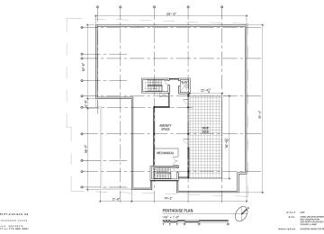
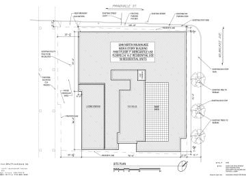
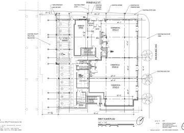
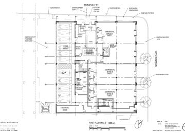
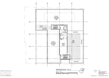
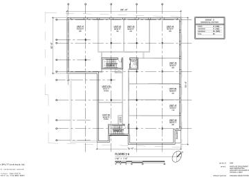
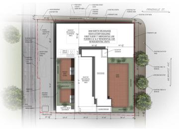
Image April 10, 2026 Caisson permit issued for development at 2240 N. Milwaukee The six-story building will have 50 units and retail
Image December 16, 2025 City Council approves development at 2240 N. Milwaukee The six-story building will have 50 units and retail
Image September 10, 2025 Refined proposal revealed for development at 2240 N. Milwaukee Slight design changes have been made to the six-story building