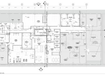
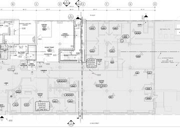
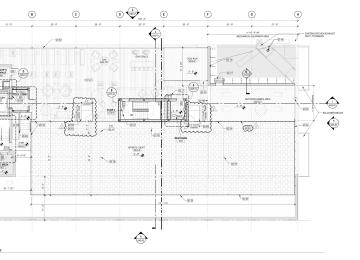
230 E. Ohio

Approved Last updated 12/3/2025
Project Uses Apartments
# of Apartments 72
Floors (Above Ground) 7
Podium No
Construction Type Rehab/Adaptive Reuse

Companies

Developer Horizon Realty Group
Architect NORR
General Contractor HRG Realty Management LLC
You have X free articles remaining this month.
Subscribe today!
Subscribe