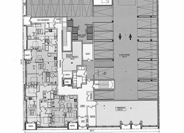
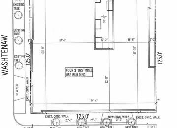
Image March 19, 2026 Zoning application filed for development at 2652 W. Chicago The four-story scheme has the alderman’s approval
Image February 6, 2026 Ald. Villegas announces support for proposal at 2652 W. Chicago A reduced, four-story, 40-unit plan for the site will move forward
Image September 12, 2025 Demo permit issued to make way for mixed-use development at 2652 W. Chicago A five-story mixed-use building is proposed for the site