A zoning application has been filed for the latest version of the proposed development at 2652 W. Chicago, which got support from Alderman Villegas to move forward back in February. Planned by Barrett Homes, the project site is located at the northeast corner of the intersection of W. Chicago Ave and N. Washtenaw Ave. An existing structure that was previously home to an Advance Auto Parts store was recently demolished to make way for the development.
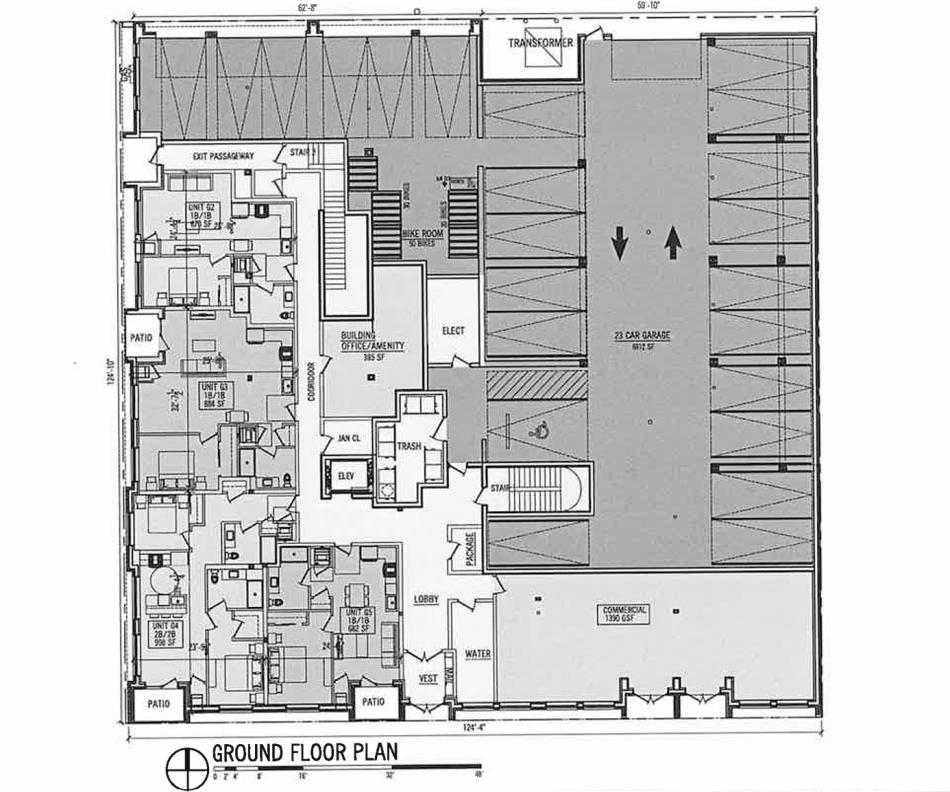
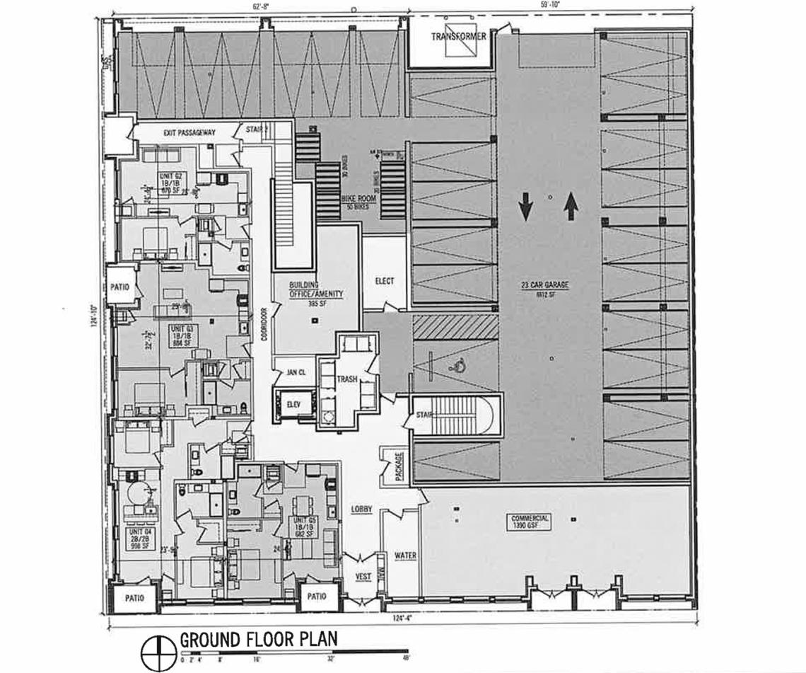
Designed by 360 Design Studio, the current version of the project is planned as a four-story building with 40 residential units, 1,390 square feet of retail space, 23 car parking spaces, and 50 bike parking spaces. This version comes after the developer went through multiple community meetings and reduced the project down from five stories originally to appease neighbors' concern about height and density.
The building’s ground floor will have the 1,390 square feet of retail space facing W. Chicago Ave, with the residential entry next to it. Four apartments will occupy the remainder of the W. Chicago Ave frontage and the majority of the N. Washtenaw Ave frontage. The back portion of the ground floor will have an interior garage for 23 parking spaces and 50 bike parking spaces.
On the upper floors, the second and third floors will have 11 units per floor while the fourth floor will have 14 units. With a total of 40 units, the project’s unit mix includes one studio, 17 one-beds, 13 two-beds, and 9 three-beds. Select units will have private balconies
To allow for the scope of the project, the developer is seeking to rezone the site from C1-2 to B2-3. With approval from Alderman Villegas already secured, the proposal can seek approvals from the Committee on Zoning and City Council. In the video released by Alderman Villegas expressing his approval, he said the project is looking to break ground this summer.




