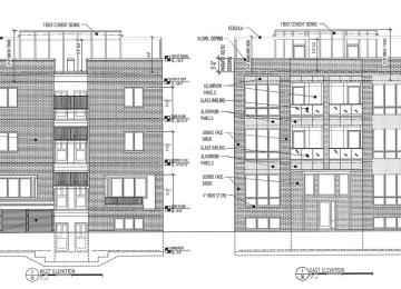
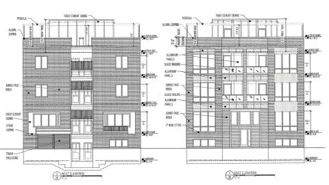
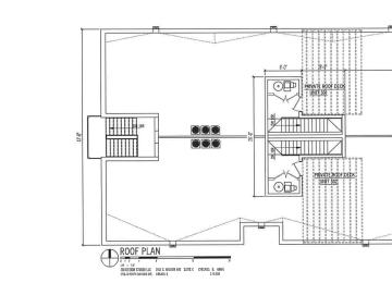
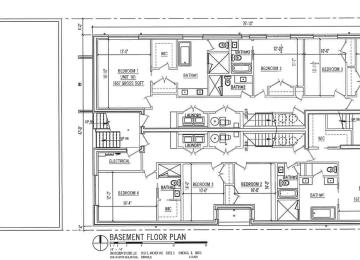
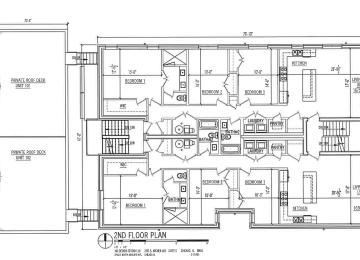
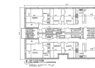
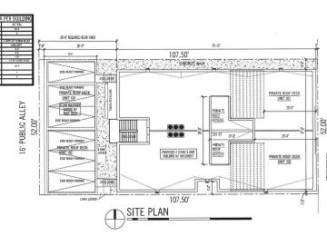
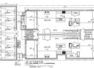
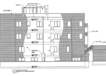
Image September 9, 2025 Permits issued for residential development at 2718 N. Ashland The three-story building will have six new residential units
Image May 27, 2025 City Council approves residential development at 2718 N. Ashland The three-story building will have six new residential units
Image May 17, 2025 Zoning application filed for development at 2718 N. Ashland The three-story building will have six new residential units