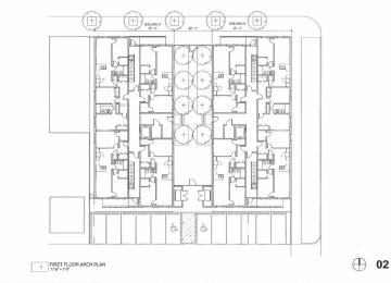
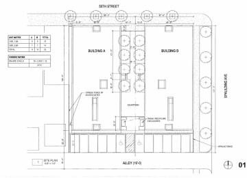
3301 W. 55th

Approved Last updated 4/3/2026
Project Uses Apartments, Parking
# of Apartments 32
Floors (Above Ground) 4
Podium No
Height (ft) 47
Construction Type Type 3, 4 & 5

Companies

Developer 3301 W 55th LLC
Architect von Weise Associates
Kinexx Modular
You have X free articles remaining this month.
Subscribe today!
Subscribe