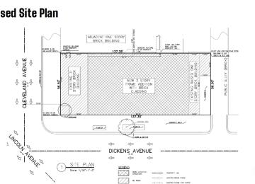
458 W. Dickens

Approved Last updated 10/20/2025
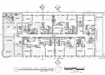
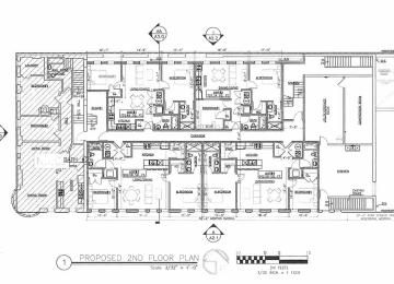
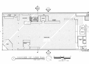
Project Uses Apartments
# of Apartments 11
Floors (Above Ground) 3
Podium No
Height (ft) 38
Construction Type Rehab/Adaptive Reuse, Type 3, 4 & 5

Companies

Developer Arthur Paris
Architect Red Architects
You have X free articles remaining this month.
Subscribe today!
Subscribe