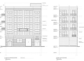
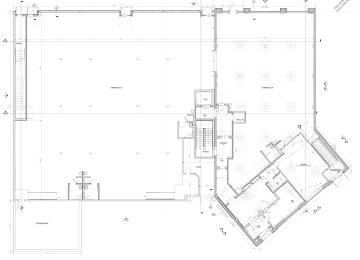
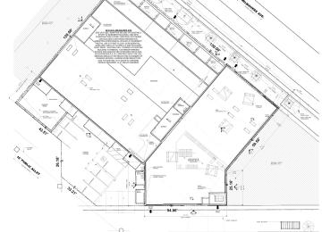
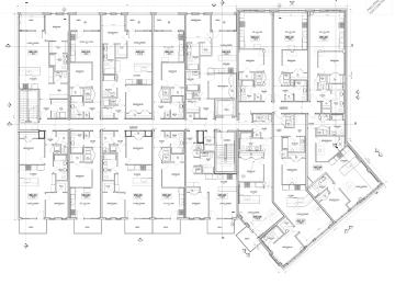
Image December 24, 2025 Foundation permit issued for Hollander Building redevelopment The revised project at 2938 W. Fullerton is under new ownership
Image December 5, 2025 ZBA approves variances for Hollander Building redevelopment The revised project at 2938 W. Fullerton is under new ownership
Image August 12, 2024 City Council approves redevelopment of Hollander Building The project at 2422 N. Milwaukee will have 62 apartments and retail