The Zoning Board of Appeals has approved a set of variations for the mixed-use redevelopment of the Hollander Building. Located at 2938 W. Fullerton, the project site consists of the Hollander Building, which fronts N. Milwaukee Ave and reaches down to Fullerton Ave, and the one-story structure and vacant site to the north of the building. Originally planned by GW Properties, the developer sold the property to J2 Equities who is now leading the revised redevelopment.
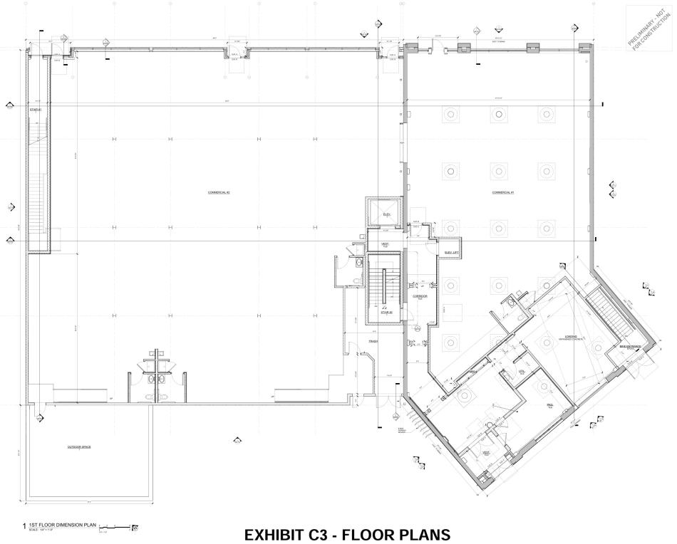
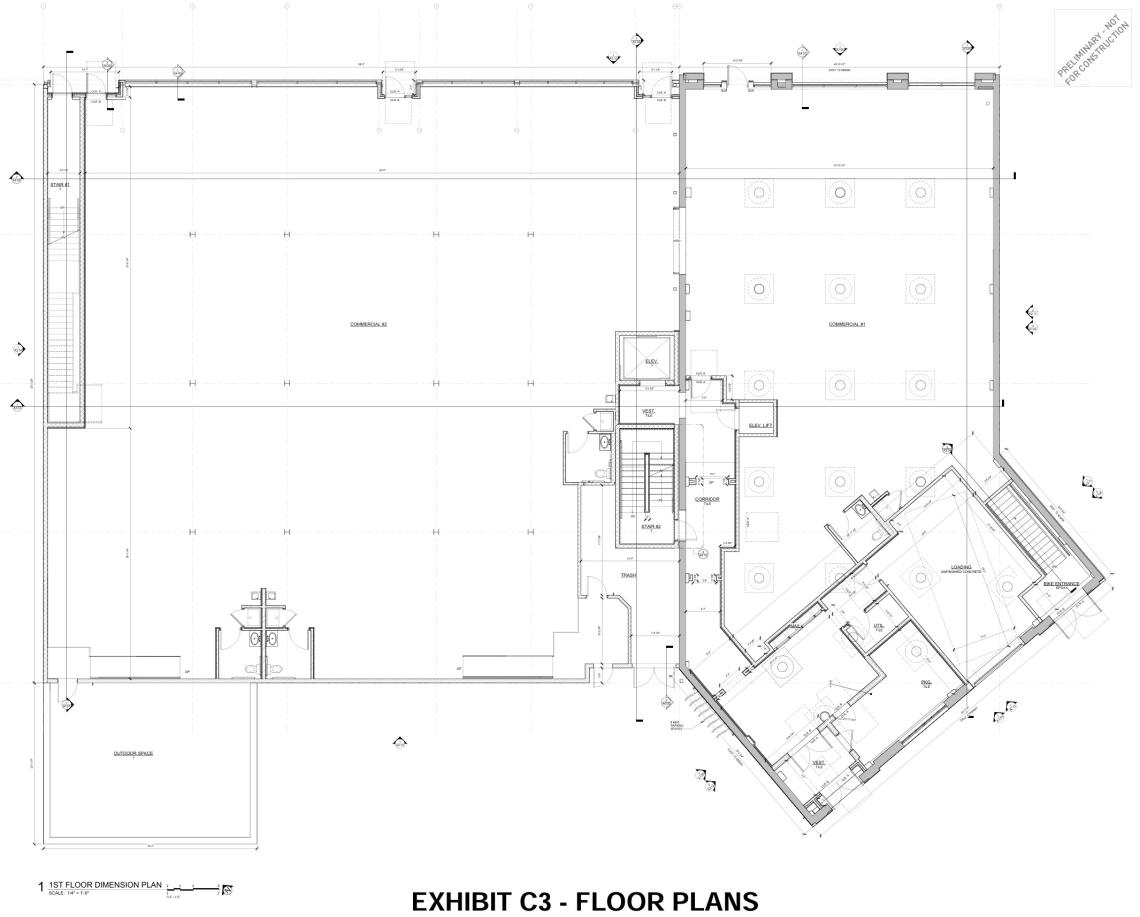
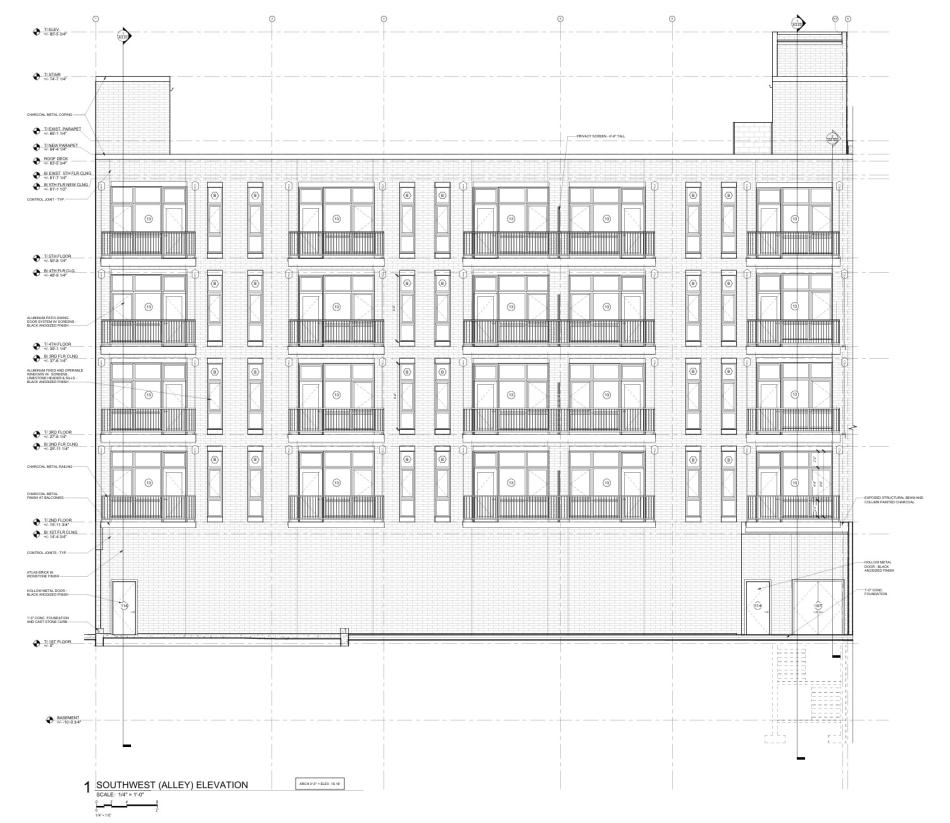
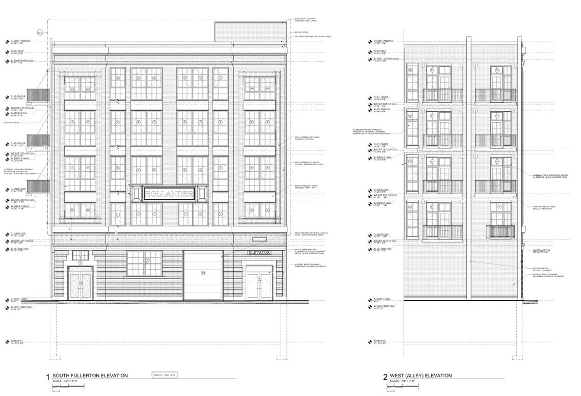
Designed by SPACE Architects + Planners, the development will remain largely the same, rehabilitating the Hollander Building and building a new five-story addition that will replace the existing parking lot and one-story structure. Rising 74 feet, the project will have approximately 12,000 square feet of ground floor retail space occupying the entire N. Milwaukee Ave frontage, with the residential lobby accessed from W. Fullerton Ave. There will be seven surface parking spaces along the alley.
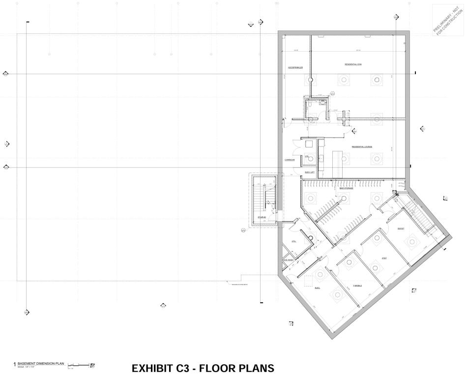
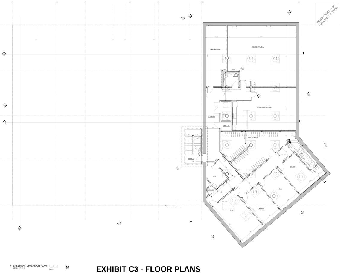
Residents will have access to 56 bike parking spaces in a bike room in the basement in addition to 8 bike parking spaces behind the building. A fitness center and resident lounge will also be located in the basement for tenants.
On the upper floors, the project will include 62 residential units with a unit mix of 38 one-beds and 24 two-beds. The developers will include 12 affordable units at an average of 60% AMI to meet affordability requirements. Units on the top floor of the addition will setback significantly from the street, creating large private terraces. Most units will have private balconies either integrated into the front facade or hanging off the back of the building. A shared rooftop deck will also be provided.
To allow for the project, the developer is seeking a variation to eliminate the required 10' x 25' loading berth and a variation to reduce the required parking spaces from sixty-two to seven for the development.
With ZBA approval secured, the developer can move forward with permitting and construction. Permits have been filed and are undergoing the review process. A timeline for construction has not been announced.





