Skip to main content
Chicago
Chicago
Neighborhoods
Fulton Market
Lakeview
West Loop
Lincoln Park
The Loop
South Loop
Citywide
Near North
Uptown
Bronzeville
Near West Side
River North
View All→
Urbanize Network
National
Seattle
Atlanta
Austin
Chicago
Dallas
Washington DC
Detroit
Los Angeles
New York
Toronto
San Francisco
Projects
Advertise
Sign In
My Account
Sign Out
Subscribe
Search
Advertisement
Logan Square
Chicago
Logan Square
Demo permit issued for proposed development at 1805 N. Campbell
The proposal for the site would build a 4-story residential building
September 16, 2025 by Lukas Kugler
Chicago
Logan Square
Refined proposal revealed for development at 2240 N. Milwaukee
Slight design changes have been made to the six-story building
September 10, 2025 by Lukas Kugler
Chicago
Logan Square
Permits issued for mixed-use development at 2072 N. Western
The project will replace the original Red Hot Ranch location
July 12, 2025 by Lukas Kugler
Chicago
Logan Square
New developer proposes new residential scheme at 1805 N. Campbell
The new development is larger similar at four stories and 21 units
June 17, 2025 by Lukas Kugler
Chicago
Logan Square
Mixed-use development proposed at 2240 N. Milwaukee
The six-story building would have 50 units and retail
May 23, 2025 by Lukas Kugler
Chicago
Logan Square
City Council approves residential development at 1815 N. California
The five-story building will rise near the 606 trail
April 30, 2025 by Lukas Kugler
Advertisement
Chicago
Logan Square
City Council approves residential conversion at 2625 N. Talman
The 1920s church will become 16 apartments
April 18, 2025 by Lukas Kugler
Chicago
Logan Square
City Council approves Class L for Congress Theater
The tax incentive will help finance the rehabilitation of the historic building
March 25, 2025 by Lukas Kugler
Chicago
Logan Square
Zoning application filed for residential conversion at 2625 N. Talman
The 1920s church will become 16 apartments
March 19, 2025 by Lukas Kugler
Chicago
Logan Square
Encuentro Square celebrates grand opening
The affordable housing development is delivering 89 new residences
February 28, 2025 by Lukas Kugler
Chicago
Logan Square
Residential conversion planned for church at 2625 N. Talman
The 1920s church will become 16 apartments
February 4, 2025 by Lukas Kugler
Chicago
Logan Square
City Council approves residential development at 2429 W. Fullerton
The new five-story building would have 38 apartments
January 23, 2025 by Lukas Kugler
Chicago
Logan Square
Committee on Zoning approves development at 2429 W. Fullerton
The new five-story building would have 38 apartments
January 10, 2025 by Lukas Kugler
Chicago
Logan Square
Full building permit issued for development at 2481 N. Milwaukee
The four-story building will have nine apartments and retail
December 14, 2024 by Lukas Kugler
Chicago
Logan Square
Landmarks approves Class L for Congress Theater
he tax incentive will help finance the rehabilitation of the historic building
December 9, 2024 by Lukas Kugler
Chicago
Logan Square
Zoning application filed for development at 2429 W. Fullerton
The project would have 38 apartments if the rezoning is approved
October 17, 2024 by Lukas Kugler
Chicago
Logan Square
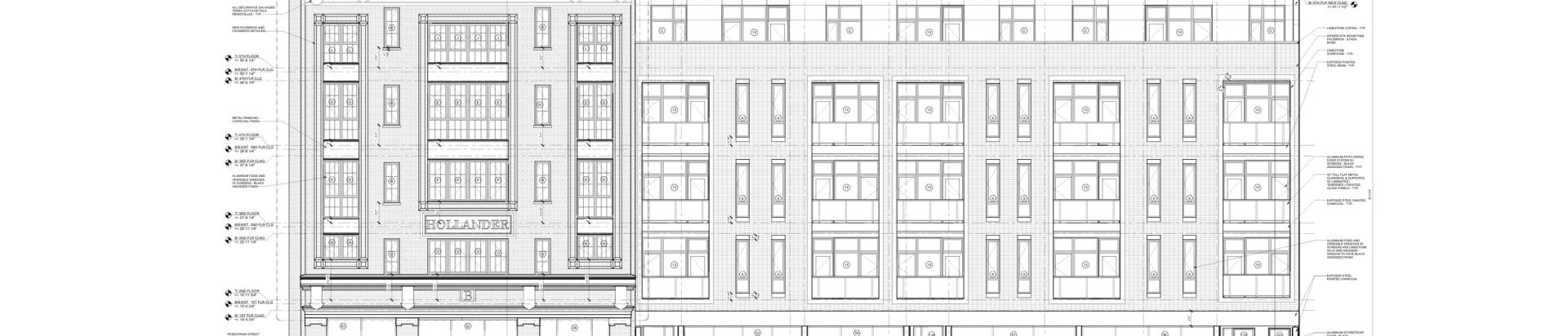
City Council approves redevelopment of Hollander Building
The project at 2422 N. Milwaukee will have 62 apartments and retail
August 12, 2024 by Lukas Kugler
Chicago
Logan Square
Full building permit issued for residential development at 2355 N. Washtenaw
The five-story building will have 15 residential units and retail
August 8, 2024 by Lukas Kugler
Pagination
Load more articles
Stay informed.
All our breaking news, straight to your inbox.
Subscribing
LA (Daily)
LA (Weekly)
Atlanta
Austin
Chicago
Dallas
Detroit
NYC
San Francisco
Seattle
Toronto
Washington DC
Don't show me this again
You have
X
free articles remaining this month.
Subscribe today!
Subscribe