A zoning application has been filed for a proposed residential development at 1415 N. Dayton. Initially revealed last week, the project is being planned by Honore Properties and Peerless Development. The project site is located at the northeastern corner of W. Evergreen Ave and N. Dayton St and is occupied by an existing four-story loft building. The developers were contemplating an adaptive reuse of the existing building but will now demolish the building to make way for the new development.
Designed by bKL Architecture, the new proposal for the site would take shape as a 28-story residential tower with 340 residential units, 163 parking spaces, and 340 bike parking spaces. To meet ARO requirements, 20%, or 68 of the units, will be set aside as affordable.
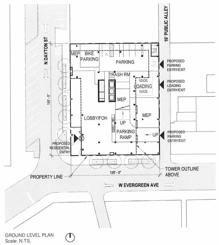
On the ground floor, the residential lobby will front both W. Evergreen Ave and N. Dayton St, with bike parking located at the north end of the building. The back side of the ground floor will have mechanical spaces, a losing dock, six parking spaces, and the parking ramp up into the podium. All vehicular access for the building will be off the alley.
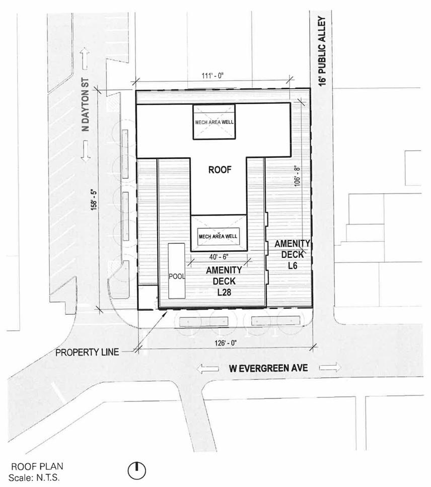
The building’s design features a five-story brick podium that will hold the planned 163 parking spaces topped by an amenity deck. Reaching a total height of 327 feet tall, the residential tower will rise above the podium clad in a glass and metal window wall system. The building’s 28th floor will be an amenity level with a rooftop deck and pool.
To allow for the scope of the project, the developers are assembling air rights from surrounding properties to achieve the density of the proposal. The proposal is seeking to rezone the sites from B2-5 and C3-5 to a unified C2-5 with a Planned Development designation. Approvals will be needed from the Chicago Plan Commission, Committee on Zoning, and City Council.
As reported by Crain’s, the project’s developers are seeking to win City Council approval in March. If approved, the existing building would be demolished in a few months from now and the new construction would begin in the fall with delivery targeted for Spring 2028.





