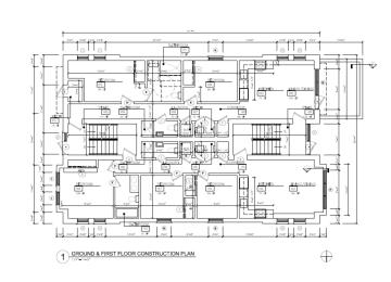
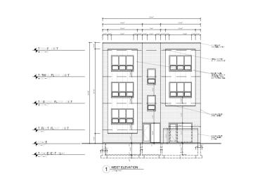
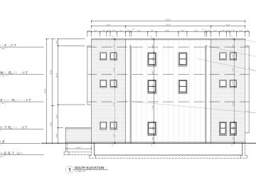
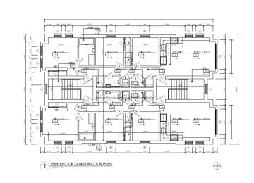
6601 S. Evans

Approved Last updated 12/3/2025
Project Uses Apartments, Parking
# of Apartments 7
Floors (Above Ground) 3
Podium No
Construction Type Type 3, 4 & 5

Companies

Developer Click Development LLC
Architect Houts Architects
You have X free articles remaining this month.
Subscribe today!
Subscribe