Skip to main content
Chicago
Chicago
Neighborhoods
Fulton Market
Lakeview
Lincoln Park
West Loop
The Loop
South Loop
Citywide
Near North
Bronzeville
Uptown
Near West Side
River North
View All→
Urbanize Network
National
Seattle
Atlanta
Austin
Chicago
Dallas
Washington DC
Detroit
Los Angeles
Miami
New York
Toronto
San Francisco
Projects
Advertise
Sign In
My Account
Sign Out
Subscribe
Search
Advertisement
Lakeview
Chicago
Lakeview
Full building permit issued for Dinkel’s Lofts at 3327 N. Lincoln
The mixed-use development will preserve the Dinkel’s facade
May 25, 2026 by Lukas Kugler
Chicago
Lakeview
Full building permit issued for development at 1215 W. Belmont
The five-story building will have 40 apartments and retail space
May 20, 2026 by Lukas Kugler
Chicago
Lakeview
ZBA approves variations for development at 3768 N. Clark
The four-story building will have five residential units
May 17, 2026 by Lukas Kugler
Chicago
Lakeview
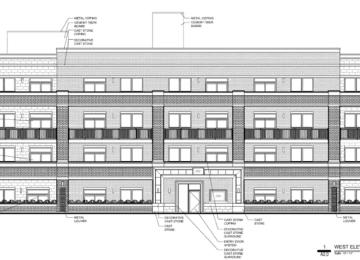
Committee on Zoning approves development at 3611 N. Halsted
The 12-story building will have 188 apartments and a cafe
May 14, 2026 by Lukas Kugler
Chicago
Lakeview
Alderwoman Clay supports development at 3909 N. Ashland
The four-story building would have eight apartments
May 8, 2026 by Lukas Kugler
1
Chicago
Lakeview
Demo permit issued to make way for project at 3600 N. Southport
The new four-story building will have 10 dwelling units
May 3, 2026 by Lukas Kugler
2
Advertisement
Chicago
Lakeview
Demo permit issued to make way for development at 919 W. Belmont
The as-of right development will have 46 apartments and retail
July 24, 2025 by Lukas Kugler
3
Chicago
Lakeview
City Council approves mixed-use development at 749 W. Briar
The former Briar Street Theater will be converted into retail and apartments
July 21, 2025 by Lukas Kugler
Chicago
Lakeview
Mixed-use development proposed at 1215 W. Belmont
The five-story building would have 40 apartments and retail space
July 17, 2025 by Lukas Kugler
Chicago
Lakeview
Residential development proposed at 3039 N. Kenmore
The new three-story building would have three units
July 15, 2025 by Lukas Kugler
Chicago
Lakeview
Redevelopment at 749 W. Briar presented to the community
The former Briar Street Theater will be converted into retail and apartments
July 11, 2025 by Lukas Kugler
Chicago
Lakeview
City Council approves townhome development at 2235 W. Oakdale
The site will become home to 35 new townhomes
May 26, 2025 by Lukas Kugler
Chicago
Lakeview
Plan Commission approves townhome development at 2235 W. Oakdale
The site will become home to 35 new townhomes
May 20, 2025 by Lukas Kugler
Chicago
Lakeview
Mixed-use development proposed at 749 W. Briar
The former Briar Street Theater will be converted into retail and apartments
May 19, 2025 by Lukas Kugler
3
Chicago
Lakeview
Plan Commission approves LPO application for 514 W. Aldine
The residential development will have four dwelling units across four floors
April 27, 2025 by Lukas Kugler
Chicago
Lakeview
Full building permit issued for 3310 N. Lincoln
The six-story development will have 24 apartments and retail
March 31, 2025 by Lukas Kugler
Chicago
Lakeview
ZBA approves variations for residential development at 1654 W. School
The five-story building would have 17 new apartments
March 24, 2025 by Lukas Kugler
Chicago
Lakeview
Residential development proposed at 3102 N. Western
The four-story building would include 14 residential units
March 8, 2025 by Lukas Kugler
Pagination
Load more articles
Stay informed.
All our breaking news, straight to your inbox.
Subscribing
Atlanta
Austin
Chicago
Dallas
Detroit
Los Angeles
Miami
NYC
San Francisco
Seattle
Toronto
Washington DC
Don't show me this again
You have
X
free articles remaining this month.
Subscribe today!
Subscribe